您現在的位置:首頁尾氣燃燒器
一 甲醛尾氣燃燒器設備技術參數
序號 | 名 稱 | 單位 | 參 數 |
1 | 配套爐窯或其它設備類型 | / | 鍋爐 |
2 | 輸出功率 | kcal | 900-1300萬 |
3 | 燃料1類型 | / | 甲醛尾氣 |
4 | 燃料2類型 | / | 天然氣 |
5 | 燃料1熱值 | kJ/Nm³ | 500×4.18 |
6 | 燃料2熱值 | kJ/Nm³ | 8400×4.18 |
7 | 燃氣1設計壓力 | kPa | 5-10 |
8 | 燃氣2設計壓力 | kPa | 5-10 |
9 | 燃氣1設計流量 | Nm³/h | 18000-20000 |
10 | 燃氣2設計流量 | Nm³/h | 1000 |
11 | 助燃空氣設計流量 | m³/h | 11000 |
12 | 測溫方式 | / | 熱電偶測溫 |
13 | 鼓風機功率 | kW | 37kW |
14 | 工控配置 | / | PLC自動控制 |
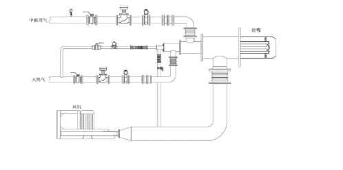
尾氣燃燒器設備系統參考示意圖
如圖所示,系統分為甲醛尾氣系統、天然氣系統、助燃風系統、點火系統、測溫部分和控制部分。

系統方案說明
1、系統配置
(1)主燒嘴選擇
根據燃料特性及具體工況,經過熱平衡測算,選用FST-150/700/600甲醛尾氣燃燒器,天然氣口徑DN150,甲醛尾氣入口DN700,助燃風管口徑DN600,長度400mm。
該燒嘴具有如下特點:
噴出速度高,火焰長,調節比大,便于調節和控制,并具有自動點火、火焰監測和熄火保護功能,能有效的調節爐內溫度;
燒嘴燃燒采用成熟的燃燒技術,優化風盤結構,明顯提升燃燒效果;
點火**,火焰品質高;
安裝方便,故障率低。
此外,燒嘴的設計較為硬朗,充分考慮了工業領域對燃燒器的嚴格要求,其內部設計均為耐用部件,不存在易損/易耗部件,且該燒嘴使用壽命長,經久耐用。用戶在安裝完畢后,無需反復拆裝檢修。
(2)點火方式
燃燒器配套就地點火箱,通過點火控制箱的按鈕進行手動操作。點火槍采用天然氣作為燃料,點火時采用小火點大火方式,啟動點火程序時首先點燃小火,待小火穩定燃燒后開啟主燃氣閥門,運行大火模式。
點火箱包括點火控制器、點火變壓器、火焰檢測器。控制系統點火操作、遠程反饋、運行狀態顯示、火焰檢測、電磁閥驅動等功能。
(3)火焰檢測
燃燒器配套有觀火鏡可以直接觀察火焰燃燒情況。點火系統配套火焰檢測器,與點火控制器連接,檢測靈敏,運行穩定。
火焰檢測裝置是整個控制系統重要的檢測裝置之一,應具有結構簡單,操作方便,性能穩定等優點。可長期連續、清晰地檢測各種燃氣窯爐的火焰。根據項目具體情況采用紫外光敏元件檢測,探頭前端裝有防塵鏡片,采用直接檢測的方式安裝,對冷卻條件要求較低。這種重要特點使該火焰檢測器具有很高的靈敏度,且對釋放紫外光譜范圍的所有火焰具有很好的選擇性,例如:液化氣、液化石油氣、焦爐煤氣、高爐煤氣、丙烷、甲烷、丁烷、煤油、輕油和柴油等燃料。
(4)測溫系統
系統根據具體工況采用測溫熱電偶,測量精度高、測量范圍廣。
(5)燃氣管路配置
燃氣管線包括甲醛尾氣管線和天然氣管線,天然氣管線又包括主燃氣管線和點火槍管道。
甲醛尾氣管線包括壓力表、手動閥、調節閥、切斷閥等。調節閥用于運行過程中燃氣流量的大小,切斷閥連鎖控制系統,用于氣源的開啟與關斷。
天然氣管線同樣包括管線壓力表、手動閥、調節閥和切斷閥。點火槍燃氣管道設置電磁閥,用于點火過程中熄火切斷。
(6)助燃風管路配置
助燃風管路主要由風機、手動蝶閥、變頻器等幾部分組成。風機采用變頻拖動,操作人員可手動調節給定值控制變頻器輸出,也可由控制系統自動根據溫度值控制風機風量。
2、控制系統
(1)主控制柜
系統燃控部分主要分為風機控制、點火控制、**連鎖控制。甲醛尾氣燃燒器主控制柜核心元件為PLC控制器,其主要功能為:
實現各執行元件按照生產操作順序進行動作;
實時監控收集現場各設備信號反饋;
通過人機交互設備進行設備操作以及運行狀態顯示;
**連鎖自動執行相應保護動作。
(2)溫度控制
溫度控制部分包括燃氣調節系統、空氣調節系統和溫度檢測系統。
燃氣調節系統由手動閥、燃氣調節閥和溫度顯示組成;助燃空氣調節系統由風機、變頻器和手動蝶閥組成。溫控系統根據實時溫度給定值,同時調節燃氣和空氣給定量,形成閉環控制。系統溫度采集為現場溫度反饋信號,控制器將實時溫度與設定溫度進行差值運算,并經過智能運算回路輸出給定變頻器相應輸出頻率;同時調節燃氣調節閥,匹配相應的燃氣量,形成閉環溫度控制系統。
3、**連鎖系統
系統過程主控程序,分別檢測超溫故障和火檢系統,一個監測點出現故障,即產生報警確保系統**性。
1)熄火保護:系統具有熄火聯鎖保護功能,由于系統波動或其它因素出現意外熄火時控制系統可發出聯鎖控制信號,關閉閥門。
2)超溫報警:測溫點溫度超高時,系統發出報警信號。
鄭州德斯特自動化設備有限公司專業設計各類尾氣燃燒器,承接:尾氣鍋爐,尾氣窯爐工程項目,設計施工交鑰匙工程,技術咨詢電話(微信同步):15713691937。
上一頁:尾氣燃燒器|解析氣尾氣燃燒器
下一頁:尾氣燃燒器|鍋爐燃燒器

尾氣燃燒器參考熱值及應用領域

焦爐煤氣燃燒器設備技術服務專業廠家 鄭州中威環保設備有限公司

低氮尾氣燃燒器設備廠家 鄭州德斯特自動化設備有限公司

焦爐煤氣燃燒器設備技術服務專業廠家 鄭州中威環保設備有限公司

高爐煤氣燃燒器可以采用富氧或全氧助燃燃燒方式,可以提高理論燃燒溫度。

氫氣燃燒器設備廠家 鄭州德斯特自動化設備有限公司

沼氣燃燒器設備廠家 鄭州德斯特自動化設備有限公司

高爐煤氣燃燒器設備技術服務專業廠家 鄭州德斯特自動化設備有限公司
版權所有:鄭州中威環保設備有限公司 豫ICP備19039779號-2